For Sale
0 Tennant Ave, Morgan Hill, CA
Undisclosed Price

*+/- 6.347 acre parcel
*Substantial entitlement work already completed
*APN: 817-09-055
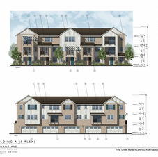
*106 Units-SB330 Project
*Project deemed CEQA exempt
Exceptional ±6.347-acre infill parcel and would like to invite you and your team to review this opportunity. If the project aligns with your development objectives, we welcome the submission of offers for the owner’s consideration.
The owner and his consulting team have made significant progress on the SB 330 application, and the project is now only weeks away from achieving formal “project certification” by the City. In addition, the property has been determined to be CEQA exempt, substantially shortening the remaining processing timeline.
The site is General Planned and zoned Residential Attached – Medium. The submitted site plan proposes 106 townhome-style condominium units, consisting of the following mix:
43 two-bedroom units
46 three-bedroom units
17 four-bedroom units
Each unit includes a two-car garage. The project also provides 16 BMR units in compliance with the City’s inclusionary housing ordinance.
Please review the materials in the Dropbox link below at your convenience. Should you have any questions or wish to discuss the project further, we would be pleased to arrange a conference call or in-person meeting.
If you intend to submit an offer, please note that Letters of Intent (LOIs) are due no later than Wednesday, November 5th. South County Realty will work closely with you and your team to navigate the remaining entitlement and approval process to help move efficiently toward the construction commencement stage.









